
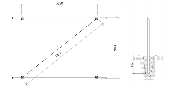
Start med at måle ud til stolperne. Det kan du gøre ved enten at placere galger eller ved at trække en snor. Det er vigtigt at være meget nøjagtig i opmålingen, da stolperne bestemmer resten af konstruktionens nøjagtighed.
Der skal være 382 cm fra forkant af den forreste stolpe til bagkant på den bagerste. Ligeledes skal der være 304,4 cm fra højre kant af bagerste stolpe til venstre kant af den anden bagerste stolpe.
Husk løbende at tjekke dine diagonalmål. Det er vigtigt, at disse er ens fra alle hjørner. Det betyder, at konstruktionen er i vinkel.
Der skal skæres ud i stolperne til remmene på ydersiden. Mål 145 mm ned af stolpens top og 45 mm ind. Dette skal bortskæres, så du kan lægge remmen på stolpen.
Når du har målt op, skal du grave huller til stolperne. Disse skal graves minimum 90 cm ned for at være i frostfri dybde. Stil stolperne i hullerne og fyld op med stolpebeton. Husk, at den bagerste stolpe skal være lavere end den forreste. Taget skal falde 2 cm pr. meter, hvilket rundt regnet giver 8 cm forskel i stolperne i dette tilfælde.
Remmen lægger du nu på stolperne og fastgør med en bræddebolt. Bor for med et 12 mm træbor og spænd bræddebolten godt til. Husk at bruge spændeplade.
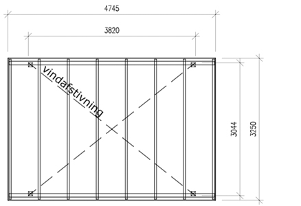
Skær alle spær i en længde af 320 cm pr. spær. Fordel spær med samme afstand på remmene og fastgør dem til remmen med vinkelbeslag. Monter vindtrækbånd, da det stabiliserer hele konstruktionen, og gør den mindre følsom over for vind.
Nu er du klar til at montere trapezpladerne. Her skal der bruges 10-12 stk. bundskruer pr. kvm. trapezplade. Fastgør hver 2. eller 3. bølgedal. Skruerne skal strammes, indtil du kan se, at pakningen slutter tæt. Start i første bølgedal ved sternbræt.


Når du har monteret alle tagpladerne og sikret, at bundskruerne er tætskruede, så er du klar til at lave det afsluttende arbejde på din carport.
Monter sternbrædder i spærender og langs spærret foran carporten. Ovenpå sternbræt monteres dækbræt med udhæng på 1 cm.
Tagrenden skal monteres på konsoljern. Konsoljernene skrues på spærret bag carporten. Husk at tagrenden gerne må have en smule fald mod nedløbsrøret for at hjælpe vandet lidt på vej.
Monter nedløbsrøret på bøjningerne og tilslut direkte til offentlig kloak eller til faskine på egen grund.
Tillykke! Du har nu bygget din egen carport.
Når imprægneringen af træet har fortaget sig (typisk 6 måneder), kan du give carporten en overhaling med en god træbeskyttelse.
Ønsker du at bygge videre på din carport, kunne det være oplagt at beklæde siderne med træ (fx klinkbeklædning), eller måske montere et loft med belysning i carporten.
Træ og konstruktion:
Dækbræt: 1 x 19x100mm 360 cm - 2 x 19x100mm 480cm
Sternbræt: 2 x 25x125mm stern g44 over 480 cm - 2 x 25x125mm stern g44 over 420 cm 2 x 25X125mm Stern g44 under 480 cm 2 x 25X125mm Stern g44 under 420 cm
Spærtræ: 8 x 47x150mm spærtræ C24 360 cm
Remme: 2 x 47x150mm spærtræ C24 480 cm
Stolper: 4 x 97x97 fyr stolpe trykimpr. 300 cm
Beton: 4 x Bygma stolpebeton 25kg
Beslag og skruer:
1 x Andk Bræddebolt FZV - 12x160mm (æske)
1 x Møtrik 6-kt fzv m12 din 934-8 - (æske)
1 x Andk spændeplade 4kt 12x50x50 5mm (æske)
1 x Bygma powerfast C5M spånskrue 4,5 x 70mm (æske)
1 x Simpson beslagskrue Elz 5x40mm (æske)
1 x Simpson vindtrækbånd 40x2mm (rulle)
16 x Simpson vinkelbeslag 90M/Rib
Tag:
3 x Plastmo trapez tagplade ecolite
4 x Plastmo bundskrue med skiver til trapez (pose)
4 x Bygtjek tagfod standard
1 x Plastmo tagrende 11 grå 6m
1 x Plastmo plastrørholder grå 75mm
6 x Plastmo plastkonsol 11 grå
1 x Plastmo nedløbsrør 75mm grå 3m
2 x Plastmo grå endebund 11
2 x Plastmo grå bøjning 45 grader 75mm
1 x Plastmo tudstykke 11/75 grå
1 x Plastmo tagrendelim 150ml til plast